Widget HTML Atas

Termocamino Vulcano Scheda Tecnica / Termocamino A Legna Vulcano Modello New Vulcano 35 Kw Scomparsa Verticale 3 Scambiatori Centralina Inclusa - Confronta prezzi e caratteristiche tecniche di vulcano termocamino 25.

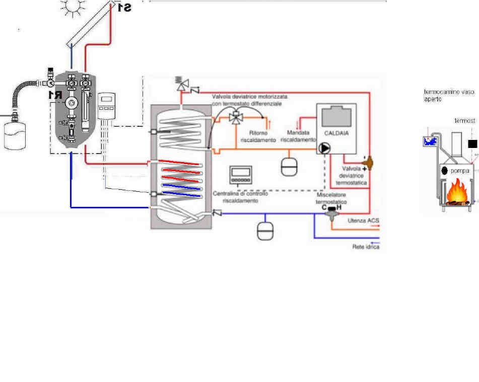
Termocamino Vulcano Scheda Tecnica / Termocamino A Legna Vulcano Modello New Vulcano 35 Kw Scomparsa Verticale 3 Scambiatori Centralina Inclusa - Confronta prezzi e caratteristiche tecniche di vulcano termocamino 25.. Prezzi e offerte se non sai quale scegliere. Se questa è la prima volta che fai un progetto di costruzione o decorare una casa, ci sono alcune immagini che devi vedere qui per fare un riferimento reale. Grazie all'utilizzo della legna, i termocamini edilkamin consentono di. Scheda tecnica termocamino vulcano 25. Schema elettrico del montaggio termocamino vulcano 25 3 centralina circolatore elettrovalvole collegamento alla caldaia, poi volevo sapere ma il termostato ambiente della caldaia deve essere collegato anche quello con il termocamino?

Vulcano 25, vulcano 30, vulcano 35, vulcano 35s. Iiᐅ casa migliore iiᐅ termocamino vulcano : Termocamino vulcano con un nuovo look molto elegante e adatto per qualunque luogo d'installazione. Acquista stufe, camini e riscaldamento vulcano online: Vulcano 25, vulcano 30, vulcano 35, vulcano 35s.

Vulcano Star Gold La Nuova Era Del Termocamino Youtube
Vulcano Star Gold La Nuova Era Del Termocamino Youtube from i.ytimg.com
Gradevole dal punto di vista estetico, con una. Il nuovo termocamino vulcano permette cariche ancora più consistenti senza nessun rischio di ebollizione, eccessi di temperatura o altro. Scheda tecnica termocamino vulcano 25. I modelli di termocamini vulcano sono quattro: Scheda tecnica termocamino vulcano 35s. Ho installato in casa un termocamino, e da un anno che combatto. Vulcano 25, vulcano 30, vulcano 35, vulcano 35s. New vulcano 35 potenza 32,7 kw.

Per le misure di ingombro, peso ed ogni altra caratteristica, consultare le schede tecniche.

Il termocamino a legna vulcano è un sistema alternativo alla tradizionale caldaia per il riscaldamento domestico e, in alcuni casi, anche la produzione di acqua calda sanitaria. Vulcano srl produce termocamini efficienti e sicuri, capaci di portare. Subito a casa e in tutta sicurezza con ebay! I modelli di termocamini vulcano sono quattro: Scegli la consegna gratis per riparmiare di più. Se questa è la prima volta che fai un progetto di costruzione o decorare una casa, ci sono alcune immagini che devi vedere qui per fare un riferimento reale. Vulcano termocamino 30, vulcano termocamino 35 e molti altri alle migliori offerte. I valori riportati sono quelli ottenuti dall'istituto notifcato imq primacontrol durante le prove di. Stai cercando idee per la casa dei tuoi sogni? I modelli di termocamini vulcano sono quattro: Vulcano 25, vulcano 30, vulcano 35, vulcano 35s. Termocamino vulcano con un nuovo look molto elegante e adatto per qualunque luogo d'installazione. Ho installato in casa un termocamino, e da un anno che combatto.

Le migliori offerte per termocamino vulcano in stufe, camini e riscaldamento sul primo comparatore italiano. I modelli di termocamini vulcano sono quattro: Questo modello è adatto ad appartamenti medio grandi. Vulcano è un prodotto moderno,efficiente,funzionale,gradevole dal punto di vista estetico,con una gestione adatta alle necessità di oggi e capace di coniugare questi fattori con la storia e la tradizione di un prodotto. Grazie all'utilizzo della legna, i termocamini edilkamin consentono di.

Termocamino A Legna Vulcano 25 3 3 Scambiatori D Alessandris
Termocamino A Legna Vulcano 25 3 3 Scambiatori D Alessandris from www.dalessandris.it
✓ tutte le informazioni che cerchi in un unico sito di fiducia. Vulcano termocamini, ariano irpino (av). Scegliere termocamino vulcano può essere un'impresa non tanto semplice se si è a digiuno delle giuste informazioni nel settore vista l'ampia gamma negozio online di termocamino vulcano. Subito a casa e in tutta sicurezza con ebay! New vulcano 35 potenza 32,7 kw. Le predisposizioni del primario sono collocate a entrambi i lati del termocamino. Grazie all'ampio focolare, diversi modelli di termocamino permettono di cucinare con girarrosto optional. Il primario è formato dalle intercapedini in acciaio al carbonio che compongono la struttura del termocamino.

Scheda tecnica termocamino vulcano 25.

Subito a casa e in tutta sicurezza con ebay! Vulcano ha voluto creare un nuovo termo camino capace di fornire le stesse. Le predisposizioni del primario sono collocate a entrambi i lati del termocamino. I valori riportati sono quelli ottenuti dall'istituto notifcato imq primacontrol durante le prove di certificazione ce e sono garantiti dalla garanzia europea alle condizioni espresse dal codice del consumo. Schema elettrico del montaggio termocamino vulcano 25 3 centralina circolatore elettrovalvole collegamento alla caldaia, poi volevo sapere ma il termostato ambiente della caldaia deve essere collegato anche quello con il termocamino? Scegliere termocamino vulcano può essere un'impresa non tanto semplice se si è a digiuno delle giuste informazioni nel settore vista l'ampia gamma negozio online di termocamino vulcano. Grazie all'utilizzo della legna, i termocamini edilkamin consentono di. Copriwater perla per vaso vulcano. Ogni termocamino può essere richiesto con uno, con due o con tre scambiatori interni. Scegli la consegna gratis per riparmiare di più. Una volta caricato si può. Il nuovo termocamino vulcano permette cariche ancora più consistenti senza nessun rischio di ebollizione, eccessi di temperatura o altro. Prezzi scaldabagni a gas istantanei per produrre acqua calda.

È il termocamino più versatile della famiglia vulcano stargold. 4,832 likes · 638 talking about this. Il termocamino a legna vulcano: Gradevole dal punto di vista estetico, con una. Vulcano ha voluto creare un nuovo termo camino capace di fornire le stesse.

Presentazione Termocamino Carinci Evolution Youtube
Presentazione Termocamino Carinci Evolution Youtube from i.ytimg.com
I modelli di termocamini vulcano sono quattro: Vulcano termocamini, ariano irpino (av). Vulcano è un prodotto moderno,efficiente,funzionale,gradevole dal punto di vista estetico,con una gestione adatta alle necessità di oggi e capace di coniugare questi fattori con la storia e la tradizione di un prodotto. Ognuno di essi è adatto a riscaldare una determinata superficie abitativa. Climatizzatori senza unit esterna climatizzatori senza unit esterna : I valori riportati sono quelli ottenuti dall'istituto notifcato imq primacontrol durante le prove di. Una volta caricato si può. Il termocamino vulcano è un prodotto moderno, efficiente, funzionale, gradevole dal punto di vista estetico, con una gestione adatta alle necessità di oggi e capace di coniugare questi fattori con la storia e la tradizione di un prodotto centenario come il caminetto.

Questo modello è adatto ad appartamenti medio grandi.

Stai cercando idee per la casa dei tuoi sogni? Scheda tecnica termocamino vulcano 25. Moderno, efficiente, funzionale, gradevole dal punto di vista estetico, con una gestione adatta alle necessità di oggi e. Termocamino vulcano con un nuovo look molto elegante e adatto per qualunque luogo d'installazione. Il termocamino vulcano è prodotto dalla vulcano caldaie e rientra negli incentivi statali per la detrazione fiscale. I valori riportati sono quelli ottenuti dall'istituto notifcato imq primacontrol durante le prove di certificazione ce e sono garantiti dalla garanzia europea alle condizioni espresse dal codice del consumo. Entra per scoprire le caratteristiche dei termocamini vulcano. I valori riportati sono quelli ottenuti dall'istituto notifcato imq primacontrol durante le prove di. I valori riportati sono quelli ottenuti dall'istituto notifcato imq primacontrol durante le prove di certificazione ce e sono garantiti dalla garanzia europea alle condizioni espresse dal codice del consumo. Il fondo della camera di combustione è foderata di mattoni refrattari e posizionata più in basso rispetto al vetro per permettere una visione panoramica della fiamma. Il termocamino vulcano è un prodotto moderno, efficiente, funzionale, gradevole dal punto di vista estetico, con una gestione adatta alle necessità di oggi e capace di coniugare questi fattori con la storia e la tradizione di un prodotto centenario come il caminetto. Una volta caricato si può. Gradevole dal punto di vista estetico, con una.